Proces navrhování
Transparentní a systematický přístup k vašemu projektu. Od první konzultace až po finální realizaci - každý krok je pečlivě naplánován a konzultován s vámi.
Úvodní konzultace
Seznámíme se s vašimi představami, potřebami a možnostmi. Probereme základní parametry projektu.
Co zahrnuje:

Dotazník a podklady
Vyplníte náš dotazník, který nám pomůže lépe pochopit vaše představy a požadavky na budoucí projekt.
Co zahrnuje:

Studie
Na základě vašich požadavků vytvoříme předběžný návrh s orientačním výpočtem ceny stavby.
Co zahrnuje:

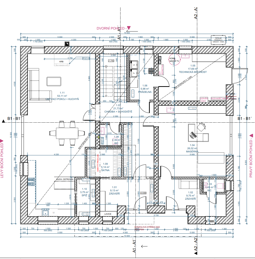
Projektová dokumentace
Zpracujeme kompletní projektovou dokumentaci pro stavební povolení včetně všech potřebných příloh.
Co zahrnuje:

Stavební povolení
Zajistíme podání žádosti o stavební povolení a komunikaci se stavebním úřadem až do vydání povolení.
Co zahrnuje:

Realizační dokumentace
Vytvoříme detailní dokumentaci pro realizaci včetně všech technických detailů a specifikací.
Co zahrnuje:

Technický dozor investora
Během realizace zajišťujeme technický dozor investora a následně i bezproblémové kolaudační řízení.
Co zahrnuje:

Časový harmonogram
Orientační doba trvání jednotlivých fází projektu
Celková doba projektu
* Doba se může lišit podle složitosti projektu a rychlosti stavebního úřadu
Proč si vybrat náš přístup
Naše zkušenosti a systematický přístup zaručují kvalitní výsledek
Transparentnost
Pravidelné konzultace a jasná komunikace v každé fázi projektu
Rychlost
Efektivní proces s jasnými termíny a dodržováním harmonogramu
Kvalita
Vysoká míra propracovanosti a individuální přístup ke každému projektu
Připraveni začít váš projekt?
Kontaktujte nás pro nezávaznou konzultaci. Společně projdeme celý proces a najdeme řešení přesně podle vašich představ.
